
一.用途
用于重复使用的工业污水的过滤。对含有纤维、尘杂及颗粒悬浮物的污水具有良好的净化作用,广泛应用于纺织、冷冻、化工、造纸等行业的污水处理,但本设备不适用易沉积的颗粒性杂物的过滤。
二.结构形式与原理
1.本设备采用非压力式即重力流过滤方式。将过滤器置于开式的水池内,水池的进水与出水具有一定的水位差即能正常工作。
2.采用转笼式过滤。本设备的主要构件为一个卧式转笼,笼的一端开口,一端密封,笼的表面为过滤网,污水因穿过转笼而得到过滤。
3.污水从笼外进入笼内,污杂物被附在转笼外表面,冲刷水从笼内向外喷射,将笼表面的杂污物冲下进入集污槽内。在水冲刷的同时,其上方的刺毛辊与转笼同向转动,而其间的接触面则为反向运动,将粘附在转笼表面的附着物刮刷下来,随水流进入集污槽。

三.特点
1.采用销齿转动,以减速箱的齿轮传动转笼上的大销轮,速比大,负荷轻,传动可靠,彻底解决了以往皮带(三角带、同步带)传动打滑、伸长、断裂等弊端。
2.转笼开口端与机座固定面间的密封由直角形改为锥形,使密封更加可靠有效。
3.反冲水与刺毛辊对转笼表面的冲与刷能使滤网的清洁度近于完善。
4.所有传动件均有润滑装置(压力水)而不污染水质。
5.所有构件材料均为不锈钢、尼龙等材料制作,能长期在室外条件运行。
四.主要规格及外形尺寸

|
滚筒φ 过滤水量m3/h |
500 |
600 |
750 |
900 |
1150 |
1400 |
|
|
滚 筒 长 度 |
600 |
100 |
|
|
|
|
|
|
|
900 |
150 |
|
|
|
|
|
|
|
1120 |
200 |
300 |
|
|
|
|
|
|
1220 |
250 |
350 |
450 |
|
|
|
|
|
1500 |
|
400 |
500 |
600 |
|
|
|
|
1750 |
|
|
550 |
650 |
800 |
|
|
|
2000 |
|
|
|
700 |
900 |
1000 |
|
H×B |
600×600 |
750×750 |
900×900 |
1050×1050 |
1350×1350 |
1600×1600 |
|
|
最低工作水位 |
350 |
450 |
550 |
650 |
800 |
1000 |
|
|
电机功率kW |
0.25 |
0.37 |
0.37 |
0.55 |
0.55 |
0.75 |
|
型号规格标示: YSL 115×175 —— 800 型号 过滤水量(m3/h)
滚筒直径(CM) 滚筒长度(CM) YSL型水过滤器外形尺寸
|
序号 |
规 格 |
外形尺寸H×B×A |
|
1 |
50 × 60 — 100 |
600 ×600 × 780 |
|
2 |
50 × 90 — 150 |
×1080 |
|
3 |
50 ×112 — 200 |
×1300 |
|
4 |
50 ×122 — 250 |
×1400 |
|
|
|
|
|
5 |
60 ×112 — 300 |
750 ×750 ×1320 |
|
6 |
60 ×122 — 350 |
×1420 |
|
7 |
60 ×150 — 400 |
×1700 |
|
|
|
|
|
8 |
75 ×122 — 450 |
900 ×900 ×1420 |
|
9 |
75 ×150 — 500 |
×1700 |
|
10 |
75 ×175 — 550 |
×1950 |
|
|
|
|
|
11 |
90 ×150 — 600 |
1050×1050×1740 |
|
12 |
90 ×175 — 650 |
×1990 |
|
13 |
90 ×200 — 700 |
×2240 |
|
|
|
|
|
14 |
115×175 — 800 |
1350×1350×2030 |
|
15 |
115×200 — 900 |
×2280 |
|
|
|
|
|
16 |
140×200 — 1000 |
1600×1600×2340 |
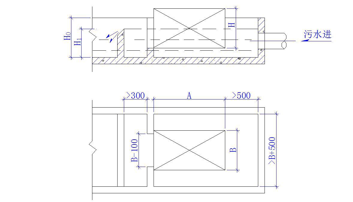
注:1、外形尺寸系指主框架尺寸,不包括变速箱、传动机构、集污槽及中心管伸出部分尺寸。
2、上述规格中过滤水量(m3/h)系指滤网采用30目/寸时的数值。当滤网目数改变时,过滤水量应作相应修正,修正系数C约为:60目/寸 C=0.75 80目/寸 C=0.5
五.安装、水池及注意事项
1、本设备一般安装在污水池的出口处,水池尺寸如图。


